Overview
- Updated On:
- April 8, 2024
- 5 Bedrooms
- 6 Bathrooms
- 281 m2
Description
The plot is located in the area of Syronas-Megaloni.
The total square meters of the plot is 4014,13 square meters.
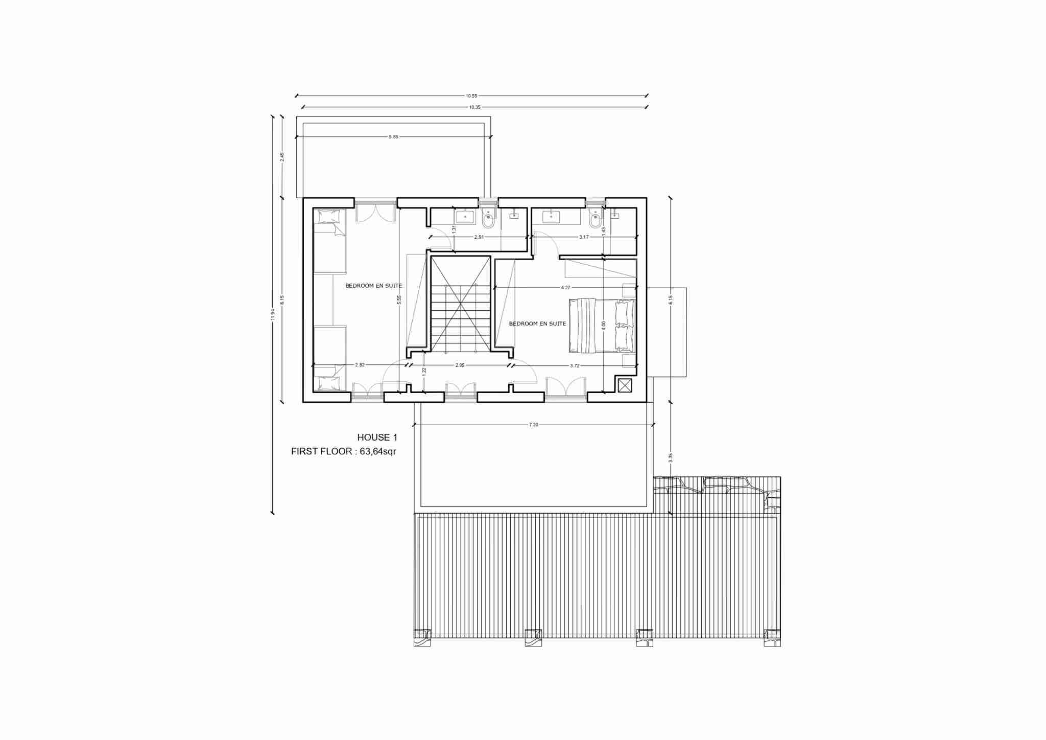
House 1: The Ground floor is 102,38 square meters and the first floor is 63,64 square meters
House 2: The Ground and the first floor are each floor 57,76 square meters. Total building space 281,54 square meters plus a pool five meters wide by 12 meters long.
The total price will be 950.000€ when the plan is completed.
A+
Your energy class is A
A
B
C
D
E
F
G
H
Address: Σκινάρια, κ. Άνω Βολίμων, Δήμος Ζακύνθου, Περιφερειακή Ενότητα Ζακύνθου, Περιφέρεια Ιονίων Νήσων, Αποκεντρωμένη Διοίκηση Πελοποννήσου, Δυτικής Ελλάδας και Ιονίου, 290 91, Ελλάδα
City: ΖΑΚΥΝΘΟΣ
Area: Megaloni
State/County: Greece
Zip: 29091
Country: Αφγανιστάν
Open In Google MapsProperty Id : 21158
Price: € 130,000
Property Size: 281 m2
Property Lot Size: 4,014 m2
Rooms: 9
Bedrooms: 5
Bathrooms: 6
Energy class: A
Interior Details
Equipped Kitchen
Laundry
Outdoor Details
Back yard
Garage Attached
Hot Bath
Pool
Utilities
Central Air
Electricity
Heating
Ventilation
Water
Other Features
Chair Accessible
Fireplace
Smoke detectors
Washer and dryer
WiFi

























